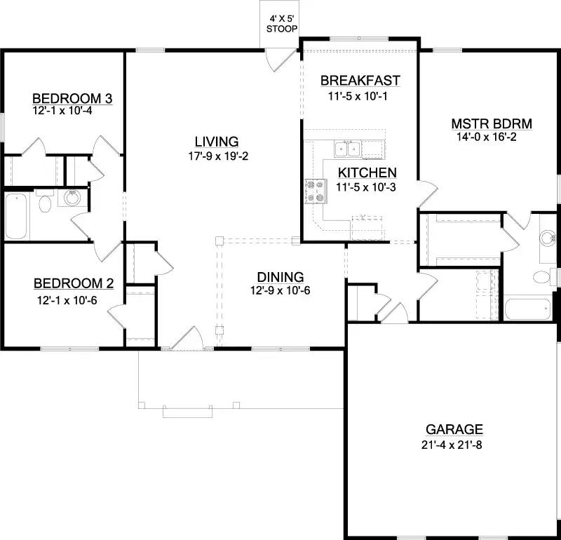
The Durham

A Elevation

Call for pricing

*Disclaimer

3 Bed 2 Bath 1704 SQFT
Dimension 57 ft W X 50 ft D
Garage Standard
Master on Main Yes
Split Bedrooms Yes

About The Durham

This delightful ranch style home provides 3 bedrooms, 2 baths and standard garage. The master bedroom is split from the other bedrooms by the spacious ‘living center’ of the house. The formal dining room with columns and separate breakfast area will provide multiple places to dine together with friends and family. This plan would be a great addition to any location.

DOWNLOAD THIS FLOOR PLAN

*Pricing Disclaimer
Any information shown is subject to change without notice. Images may show options and upgrades not included in the base home price and may not reflect actual finished home or landscaping. Specifications and prices vary by location. Home designs represented on this page are property of America's Home Place and are intended for demonstration purposes only. Any unauthorized duplication, copying, or reproduction, or any other use, is strictly prohibited. © 2025 America's Home Place, Inc.

Enjoy The Journey

1

Select Your Plan

2

Make It Your Own

3

So What’s It All
Going To Cost?

4

Sign The Building Agreement

5

Site & Pre-Construction
Meetings

6

Building Your Home

7

The Big Day